CHALÉ VITÓRIA – LINHA FAMÍLIA
R$ 62.893,50
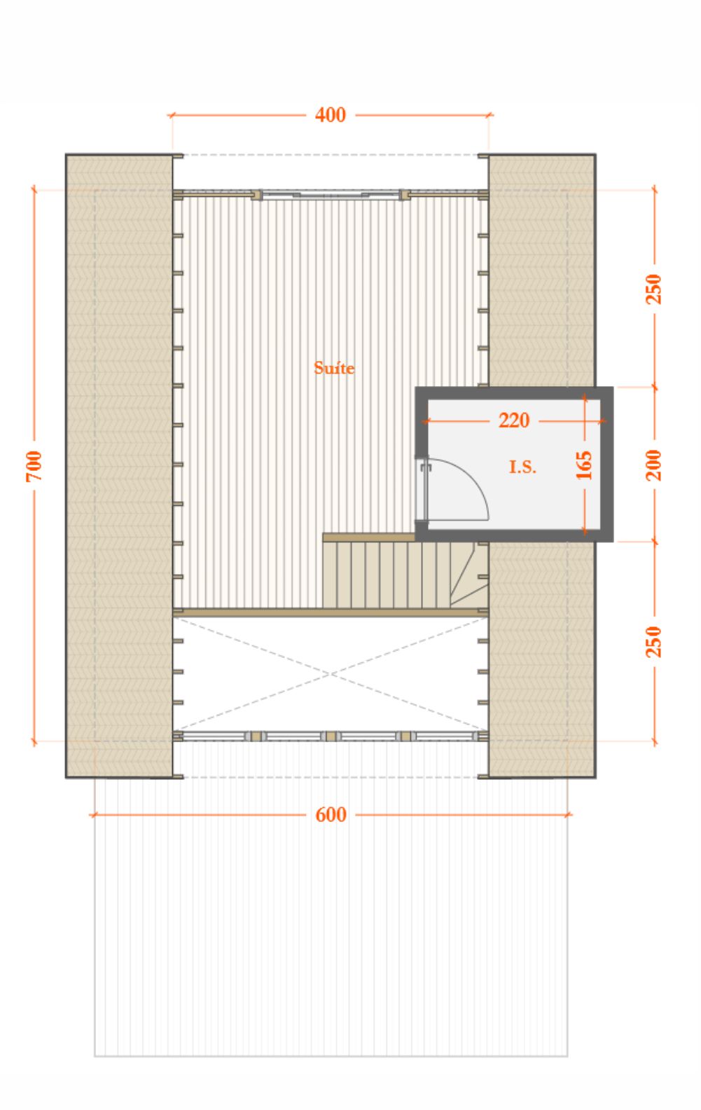
68 M² + 24 M² DE DECK – DOIS DORMITÓRIOS
CHALÉ VITÓRIA 68 M² + 24 M² DE DECK – DOIS DORMITÓRIOS
PAVIMENTO TÉRREO
- AMPLA SALA DE ESTAR, JANTAR E COZINHA INTEGRADA
- BANHEIRO
- UM DORMITÓRIO DE CASAL
- DECK FRONTAL COM 24 M²
- MEZANINO COM PÉ DIREITO DEPLO
PAVIMENTO SUPERIOR
- AMPLO DORMITÓRIO COM BANHEIRO (SUÍTE)
O que está incluso em nosso kit madeiramento?
Fornecemos toda a madeira necessária para execução do modelo selecionado (Montantes para estrutura, pranchas de parede com 40mm, cintas para amarração das paredes, caibros, vigas, travessas, pontaletes, ripas para tarugamento do forro e das telhas, espelho de beiral para acabamento do telhado, forro interno, réguas para fiação elétrica, rodapé, meia cana, assoalho para piso superior, etc…
Este modelo (Chalé Vitória) também acompanha as seguintes aberturas em madeira de Eucalipto:
- 01 un. Porta interna 210x70cm
Quais materiais o cliente deve adquirir?
Materiais brutos (areia, pedra, cimento, tijolo, ferragens), pregos, parafusos, telhas, cerâmicas, louças sanitárias, vidros, tintas, materiais elétricos e hidráulicos, não estão inclusos e devem ser adquiridos pelo cliente.
E quanto a Mão-de-Obra para construção, quem devo contratar?
Com os orientativos que fornecemos para alvenaria e madeira, você pode contratar um profissional da sua cidade para executar a obra. Além disso, oferecemos o suporte on-line para retirar todas as dúvidas até o final da sua obra.
Ao construir desta forma, você irá ter uma economia significativa ao concluir a execução de sua obra!


